Haus, Kauf, Straubenhardt
SE Immobilien Management GmbH
Individuelles Landhaus in Traumlage

Individuelles Landhaus in Traumlage

Objektbeschreibung

Willkommen in diesem großzügigen Einfamilienhaus im idyllischen Straubenhardt, das Ihnen mit seiner durchdachten Raumaufteilung ein komfortables Wohnerlebnis auf hohem Niveau bietet.



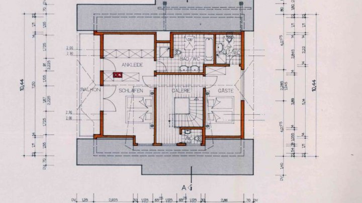
Auf ca. 187 m² Wohnfläche stehen Ihnen insgesamt 8 Zimmer zur Verfügung, darunter 4 geräumige Schlafzimmer sowie 3 Bäder und zwei zusätzliche Gäste-WCs. Die Ausstattung überzeugt durch eine harmonische Kombination aus Fliesen, Parkett, Teppichboden und PVC, die den einzelnen Bereichen eine passende und wohnliche Note verleiht.



Das Haus befindet sich in einem gepflegten Zustand. Eine Gas-Zentralheizung sorgt für eine zuverlässige und effiziente Wärmeversorgung. Ergänzend dazu bietet der hochwertige Kachelofen im Wohn- Essbereich eine angenehme Strahlungswärme und schafft eine besonders behagliche Atmosphäre.



Die Einbauküche ist funktional ausgestattet und grenzt direkt an einen gemütlichen Essbereich mit Erker. Im Kellergeschoss stehen zwei komfortable Stellplätze in der Tiefgarage zur Verfügung. Außerdem befindet sich hier ein Vorratsraum und weitere Bereiche mit viel Stauraum.



Das großzügige Grundstück mit 984 m² eröffnet vielfältige Nutzungsmöglichkeiten. Der gepflegte Garten in ruhiger Lage mit Blick auf Wiesen und Wald lädt zum Entspannen und Verweilen im Freien ein. Die Terrasse auf der Gartenseite mit ausfahrbarer Markise bietet hierfür einen angenehm geschützten Sitzbereich.“



Dieses Anwesen vereint Wohnkomfort, solide Ausstattung und naturnahes Wohnen zu einem stimmigen Gesamtbild.

Lage

Straubenhardt liegt im nördlichen Schwarzwald, eingebettet zwischen sanften Hügeln, ausgedehnten Wäldern und einer unberührten Naturlandschaft, die sowohl Erholung als auch Lebensqualität auf höchstem Niveau bietet. Die Gemeinde vereint das Beste aus zwei Welten: die Ruhe und den Charme des ländlichen Lebens mit einer hervorragenden Anbindung an die umliegenden Wirtschaftszentren.



Die Autobahn A8 ist in wenigen Minuten erreichbar und verbindet Sie schnell und unkompliziert mit Karlsruhe, Pforzheim und Stuttgart. Auch der öffentliche Nahverkehr sorgt für eine zuverlässige Verbindung in die Region. Einkaufsmöglichkeiten, Schulen, Kindergärten sowie medizinische Einrichtungen sind in der näheren Umgebung gut erreichbar und decken alle Bedürfnisse des täglichen Lebens ab.



Für Naturliebhaber und Freizeitsportler ist Straubenhardt ein wahres Paradies. Weitläufige Wanderwege, Radrouten und Freizeitanlagen laden dazu ein, die wunderschöne Schwarzwaldlandschaft aktiv zu erleben. Gleichzeitig profitieren Familien von einer intakten Dorfgemeinschaft mit einem vielfältigen Vereinsleben und einem angenehmen, familienfreundlichen Umfeld.



Wer ein Leben im Grünen sucht, ohne auf die Annehmlichkeiten der Nähe zu urbanen Zentren verzichten zu wollen, findet in Straubenhardt den idealen Standort für das eigene Zuhause.

Sonstiges

669.000 €

Kaufpreis

8

Zimmer

4

Schlafzimmer

187 m²

Wohnfläche

984 m²

Grundstücksfläche

Adresse

75334 Straubenhardt

Preise & Kosten

Kaufpreis
669.000 €
Käufercourtage
2,98 % inkl. 19% MwSt
Courtage
Die Käuferprovision beträgt 2,98 % inkl. 19 % MwSt., verdient und fällig mit Beurkundung des notariellen Kaufvertrages. Der Immobilienmakler hat einen provisionspflichtigen Maklervertrag mit dem Verkäufer in selber Höhe abgeschlossen.

Angaben zur Immobilie

Objektart
Einfamilienhaus
Grundstücksfläche
984 m²
Größe Balkon/Terrasse
25 m²
Zimmer
8
Schlafzimmer
4
Badezimmer
2
Balkone
1
Stellplätze
3
Wohnfläche
187 m²
Baujahr
1991
Letzte Modernisierungen
2018
Zustand des Objektes
Gepflegt
Verfügbar ab
sofort

Ausstattung

Stellplatzart
Freiplatz
Bad
Dusche, Wanne, Fenster
Küche
Einbauküche
Boden
Fliesen, Teppich, Parkett, Kunststoff
Kamin
heizungsart
Zentralheizung
Befeuerung
Gas
Differenzierung
Gehoben
Gartennutzung
Barrierefrei
Gäste-WC
Abstellraum
Unterkellert
Ja

EG:

* Einbauküche mit Elektrogeräten

* Essbereich mit Kachelofen

* großzügiger Wohnbereich mit Zugang zur Terrasse und in den Garten

* Gästezimmer oder Büro

* Hauswirtschaftsraum mit Anschlüssen für Waschmaschine und Trockner

* Gäste WC

OG:

* Kinder- oder Gästezimmer mit Tageslichtbad, Dusche, Waschtisch)

* Schlafzimmer mit begehbarem Kleiderschrank sowie großzügigem Tageslichtbad (Badewanne, Dusche, Waschtisch und WC).

KG:

* Kinder- oder Gästezimmer mit Tageslichtbad und WC

* Jagdstube

* Technikraum

* Vorratsraum

* Abstellraum

* Direkter Zugang zur Doppelgarage mit Wasseranschluss

* Fahrrad- und Holzlagerraum

Garten:

* Eingewachsener, gepflegter Pflanzenbestand

* großzügige Rasenfläche

* Ruhige Lage mit schönem Ausblick ins Grüne

Ansprechpartner

Mike Kunkel

Zentrale+49 7231 58 50 610
E-MailDiese E-Mail-Adresse ist vor Spambots geschützt! Zur Anzeige muss JavaScript eingeschaltet sein.

Anbieter

SE Immobilien - Management GmbH

E-MailDiese E-Mail-Adresse ist vor Spambots geschützt! Zur Anzeige muss JavaScript eingeschaltet sein.Anzeigen

Bilder

Individuelles Landhaus in Traumlage
Individuelles Landhaus in Traumlage
Individuelles Landhaus in Traumlage
Individuelles Landhaus in Traumlage
Individuelles Landhaus in Traumlage
Individuelles Landhaus in Traumlage
Individuelles Landhaus in Traumlage
Individuelles Landhaus in Traumlage
Individuelles Landhaus in Traumlage
Individuelles Landhaus in Traumlage
Individuelles Landhaus in Traumlage
Individuelles Landhaus in Traumlage
Individuelles Landhaus in Traumlage
Individuelles Landhaus in Traumlage
Individuelles Landhaus in Traumlage
Individuelles Landhaus in Traumlage
Individuelles Landhaus in Traumlage
Individuelles Landhaus in Traumlage
Individuelles Landhaus in Traumlage
Individuelles Landhaus in Traumlage
Individuelles Landhaus in Traumlage
Individuelles Landhaus in Traumlage
Individuelles Landhaus in Traumlage
Individuelles Landhaus in Traumlage
Individuelles Landhaus in Traumlage
Individuelles Landhaus in Traumlage
Individuelles Landhaus in Traumlage
Individuelles Landhaus in Traumlage
Individuelles Landhaus in Traumlage
Individuelles Landhaus in Traumlage
Individuelles Landhaus in Traumlage
Individuelles Landhaus in Traumlage